Dự án Heritage West Lake là khu căn hộ hạng sang tọa lạc tại đường Lạc Long Quân, quận Tây Hồ, Hà Nội. Chủ đầu tư dự án Heritage West Lake là Công ty Cổ phần CapitaLand – Hiền Đức (liên doanh giữa CapitaLand và Hiền Đức Group).
Tọa lạc tại “vị trí kim cương” trên trục đường ven Hồ Tây, căn hộ Heritage West Lake được giới thiệu là một “tuyệt tác ven hồ”, thừa hưởng những tinh hoa của cuộc sống bình yên nghìn năm văn hiến kết hợp với thiết kế hiện đại đánh thức các giác quan. Dự án hứa hẹn mang đến không gian sống sang trọng, đẳng cấp, đánh dấu sự xuất hiện phân khúc bất động sản siêu sang tại thị trường Hà Nội.
Được quy hoạch trên quỹ đất gần 9000m2, dự án Heritage West Lake gồm 3 tòa tháp, cung ứng 173 căn hộ ở và 202 căn hộ dịch vụ cùng tổ hợp văn phòng cho thuê, khu tiện ích, dịch vụ cao cấp.

Vị trí
Dự án chung cư Heritage West Lake có vị trí đắc địa tại khu “đất vàng” ven hồ Tây, trên trục đường Lạc Long Quân, thuộc 2 phường Phú Thượng và Xuân La, quận Tây Hồ, Hà Nội. Vị trí dự án Heritage Westlake gần ngã tư Lạc Long Quân – Nguyễn Hoàng Tôn, cách hồ Tây chỉ khoảng 100m.

Với vị trí này, cư dân của Heritage Westlake có thể dễ dàng di chuyển vào khu trung tâm Hà Nội, phố cổ, hồ Gươm hay đi trung tâm hành chính mới phía Tây thông qua các trục đường Lạc Long Quân, Nguyễn Hoàng Tôn, Bưởi, Thụy Khuê, Hoàng Hoa Thám, Hoàng Quốc Việt. Từ dự án kết nối đến sân bay Nội Bài cũng rất nhanh chóng qua trục đường Võ Chí Công nối dài lên cầu Nhật Tân.
Hạ tầng - Quy hoạch
Theo định hướng phát triển của thủ đô Hà Nội đến năm 2030, quận Tây Hồ là quận thuộc khu vực phát triển của thành phố, đóng vai trò khu đô thị trung tâm mở rộng từ nội đô về phía Tây, Nam đến đường vành đai 4 và về phía Bắc với khu vực Mê Linh, Đông Anh; phía Đông đến khu vực Long Biên, Gia Lâm.
Khu vực phường Phú Thượng, Xuân La - nơi dự án Heritage West Lake tọa lạc nằm trong Phân khu đô thị H2-1. Theo Quy hoạch Phân khu đô thị H2-1 tỷ lệ 1/2000 đã được phê duyệt, khu vực này sẽ là trung tâm hành chính - văn hóa, thương mại, dịch vụ, tài chính, ngân hàng, giáo dục, du lịch, thể thao và giải trí chất lượng cao của TP. Hà Nội, tập trung các viện nghiên cứu khoa học hàng đầu quốc gia.
Trong năm 2021, quận Tây Hồ đã và đang triển khai mới nhiều dự án hạ tầng - giao thông quanh khu vực hồ Tây, có thể tác động tích cực đến giá bán bất động sản khu vực lân cận như:
- Xây dựng tuyến đường Đặng Thai Mai - giai đoạn 1
- Mở rộng tuyến đường Tô Ngọc Vân theo quy hoạch
- Xây dựng tuyến đường Xuân Diệu đến đường Âu Cơ
- Giải phóng mặt bằng và xây dựng hạ tầng khớp nối tuyến ngõ 175 Lạc Long Quân
Tiện ích
Được định vị trong phân khúc căn hộ hạng sang, dự án Heritage West Lake Tây Hồ cũng là một trong những sản phẩm cao cấp nhất của CapitaLand nên rất được chú trọng đầu tư vào hệ thống tiện ích cao cấp theo tiêu chuẩn quốc tế, mang phong cách sống từ những đô thị xa hoa bậc nhất trên thế giới tới Hà Nội.
Với hơn 40 tiện ích nội khu hiện đại, dự án căn hộ Heritage West Lake được kỳ vọng sẽ đặt ra những tiêu chuẩn mới trong việc phát triển các dự án hạng sang tại thị trường Hà Nội. Ngoài các tiện ích phổ biến tại các dự án chung cư hiện nay, Heritage West Lake có những tiện ích lần đầu tiên tại chung cư Hà Nội như:
- Sảnh thang máy riêng cho từng căn hộ
- Bể bơi vô cực nước nóng ngoài trời dài 50m
- Bể bơi bơi hang động bốn mùa , sục jarcuzzi và thác tràn
- Khu tắm nắng, quầy bar trên cao
- Phòng tiệc với quầy rượu và xì gà
- Khu vườn mê cung, tượng thần thoại
- Hệ thống an ninh, điện dự phòng, lọc nước, phòng cháy - chữa cháy cao cấp




Mặt bằng - Thiết kế
Dự án chung cư Heritage West Lake được xây dựng trên quỹ đất 8970m2, gồm 3 tòa:
- Tòa căn hộ ở: 173 căn
- Tòa officetel: 202 căn
- Tòa văn phòng: tổng diện tích mặt bằng văn phòng 34.804,6m2

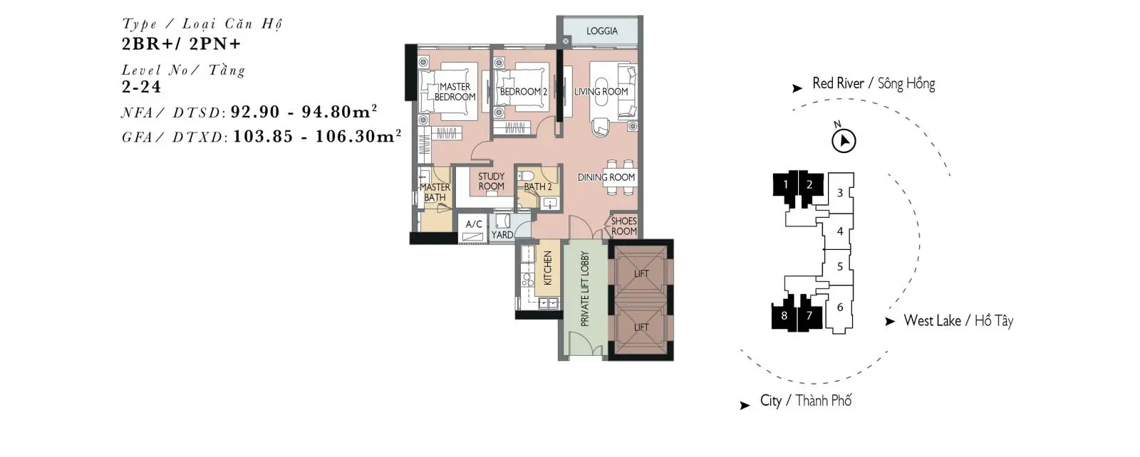
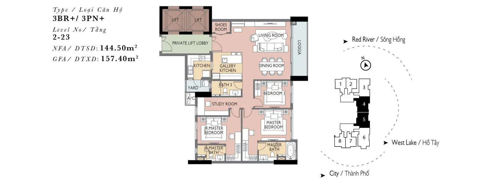
Căn hộ ở Heritage Tây Hồ có từ 2-4 phòng ngủ với số lượng và diện tích cụ thể như sau:
- 87 căn 2 PN, diện tích 93-100m2
- 55 căn 3 PN, diện tích 145-149m2
- 22 căn 4 PN, diện tích 181m2
- 6 căn duplex, diện tích 267m2
- 3 căn penthouse, diện tích 327-331m2
Một số hình ảnh mặt bằng căn hộ Heritage West Lake:






Một số điểm nổi bật trong thiết kế căn hộ Heritage West Lake:
- 100% ánh sáng tự nhiên & thông gió cho tất cả các phòng
- Logia lớn ngắm toàn cảnh hồ Tây
- Trang bị nội thất cao cấp từ các thương hiệu nổi tiếng: GESSI, Villeroy, Boch
Dưới đây là một số hình ảnh căn hộ mẫu Heritage West Lake để độc giả quan tâm tham khảo:



Giá bán
Cập nhật giá bán căn hộ Heritage West Lake tháng 1/2022: Dự án căn hộ Heritage West Lake vừa được mở bán với mức giá trung bình khoảng 124 triệu/m2, tương đương với khoảng 15,8 tỷ/căn.
Tiến độ
Cập nhật tiến độ dự án Heritage West Lake: Dự án được khởi công từ tháng 8/2021, hiện đang trong giai đoạn đầu của quá trình thi công. Tính đến cuối tháng 12/2021, dự án đã hoàn thành phần móng.
Theo tiến độ dự kiến, chủ đầu tư sẽ bàn giao căn hộ Heritage West Lake trong Quý 2/2024.

Bản đồ












