Thông tin dự án Xuân Phương Tasco
Khu biệt thự, liền kề Xuân Phương Tasco tọa lạc ở khu vực phía tây TP. Hà Nội (gồm Xuân Phương, Vân Canh, Sơn Đồng, Tây Mỗ…), phía Đông giáp ranh với khu đô thị Mỹ Đình, đường quy hoạch (50m), Trại giam hỏa lò, cánh đồng. Phía Bắc giáp với đường Trần Hữu Dực (50m), đất của dự án khác và dân cư. Phía Tây gáp khu đô thị Viglacera, đường 70 và dân cư. Phía Nam giáp với khu nhà ở Coma 18 và đường 70.
Khu đô thị Xuân Phương Tasco thuộc quần thể nhiều dự án đã triển khai như: Khu nhà ở Viglacera, Khu đô thị Mỹ Đình, Khu đô thị Vân Canh An Lạc, Khu đô thị Vân Canh Hud, Khu đô thị mới Vườn Cam, Khu nhà ở TST… Khi đường Trần Hữu Dực chưa thông, dự án này có vị trí không thuận lợi, con đường vào từ nhiều hướng đều chật chội, nhỏ hẹp, dân cư, nhà cửa... Điều đó có thể được khắc phục phần lớn khi tuyến đường Trần Hữu Dực dự kiến thông suốt vào tháng 12/2015. Khoảng cách từ trung tâm quận Nam Từ Liêm tới dự án Xuân Phương Tasco chỉ còn 1.5km.
Với ưu thế vượt trội về hạ tầng đồng bộ và vị trí địa lý, dự án Xuân Phương Tasco sẽ là “điểm sáng” về phân khúc biệt thự liền kề cuối năm nay. Cơ hội đầu tư hấp dẫn cho các nhà đầu tư.
Vị trí
Khu đô thị sinh thái Xuân Phương Tasco tọa lac tại khu vực phía Tây TP. Hà Nội (gồm Xuân Phương, Vân Canh, Tây Mỗ). Từ Khu đô thị sinh thái Xuân Phương Tasco tới trung tâm hành chính quân Nam Từ Liêm mất 2km; tới Trung tâm thể dục thể thao mất 1,5km; tới Trung tâm mua sắm Big C chỉ mất 10 phút đi xe...
Dự án giáp ranh như sau:
- Phía Đông giáp khu đô thị Mỹ Đình, đường quy hoạch (50m)
- Phía Bắc giáp dân cư, đường Trần Hữu Dực (50m) và đất của dự án khác
- Phía Tây giáp khu đô thị Viglacera, dân cư và đường 70
- Phía Nam giáp đường Trần Hữu Dực, đường 70 với thiết kế mặt cắt đường 50m, quy mô gồm 8 làn xe

Tiện ích nội khu
Khu đô thị sinh thái Xuân Phương Tasco có tổng diện tích đất 38 ha, Trong đó:
- Đất ở bao gồm những công trình nhà ở thấp tầng (biệt thự đơn lập, song lập, nhà shop-house, nhà liền kề) có diện tích 11,6 ha
- Đất ở đô thị 4,6 ha
- Đất cây xanh mặt nước 6,4 ha
- Đất các công trình nhà trẻ, trường tiểu học, trung học cơ sở và trung học phổ thông 3,06 ha
- Đất công cộng thành phố và khu vực 4.9 ha
- Đất công cộng đơn vị ở 0.42 ha
- Đất bãi đỗ xe và các công trình hạ tầng giao thông trong đô thị
Dự án bao gồm công trình nhà ở thấp tầng, các khu cây xanh, hồ nước, công trình công cộng và công trình hạ tầng xã hội. Khu đô thị được quy hoạch đồng bộ, bảo đảm đầy đủ các tiện ích cao cấp nhằm phục vụ cộng đồng dân cư hiện đại như sân tennis, bể bơi, hệ thống nhà phố thương mại shop house, đường dạo bộ xung quanh hồ điều hòa trung tâm rộng 4 ha, công viên vui chơi rộng 7500m... Bảo đảm đem đến cho cư dân trong khu đô thị cuộc sống tiện nghi - thoải mái trong một không gian xanh "Phố trong rừng" của dự án.


Trường học gần dự án
Tiện ích ngoại khu
Hiện tại, trong khu đô thị đã có cụm nhà trẻ, trường cấp I, cấp II và của quận Nam Từ Liêm. Từ dự án, trong bán kính 1,5km có chợ Cầu Diễn, chợ Canh và các chợ lớn của Hà Nội, trong bán kính 4km có Keangnam, Indochina, Big C. Bản thân dự án đã có đến 6,4 ha cây xanh, mặt nước, cách Khu liên hợp thể thao Mỹ Đình2 km, cách The Garden, Keangnam khoảng 5km...

Thiết kế - Mẫu nhà
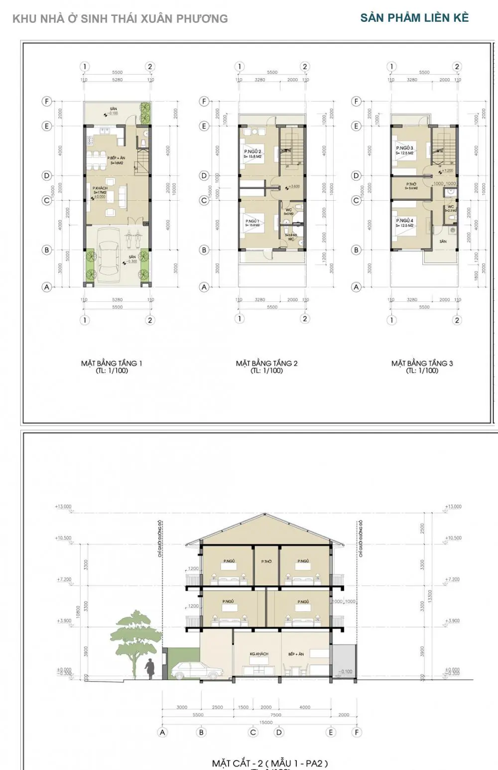
Khu biệt thự tại dự án Xuân Phương Tasco được thiết kế phong phú với nhiều loại diện tích khác nhau với từ 3-4 phòng ngủ. Các căn biệt thự đều thiết kế đón ánh sáng tự nhiên, đặc biệt còn có những căn biệt thư View hồ nước, cây xanh, công viên trung tâm tạo nên không gian sống thoáng mát, thân thiện với thiên nhiên, đem đến cho cư dân nhiều sự lựa chọn.
Các căn biệt thự Tasco Xuân Phương có diện tích đa dạng:
- Biệt thự song lập: Từ 133-267m2
- Biệt thự đơn lập: Từ 200-346m2

Liền kề biệt Xuân Phương
- Liền kề: Từ 80-202m2

Tasco Xuân Phương
- Nhà phố: Từ 90-241m2

Shop House Tasco Xuân Phương

Mẫu thiết kế biệt thự
- Thiết kế biệt thự đơn lập Xuân Phương Tasco:

Mẫu thiết kế biệt thự đơn lập tầng 2 Xuân Phương Tasco

Hỗ trợ tài chính
Các căn biệt thư, liền kề Tasco Xuân Phương có giá gốc chỉ từ 33-45 triệu/m2.
Dự án có tiến độ thanh toán linh hoạt, chia thành 5 đợt:
- Đợt 1: Thanh toán 30% khi ký hợp đồng mua bán
- Đợt 2: Thanh toán 20% khi xong móng, sàn tầng 1
- Đợt 3: Thanh toán 20% khi xong tầng tầng 2
- Đợt 4: Thanh toán 25% khi bàn giao nhà
- Đợt 5: Có sổ đỏ thanh toán nốt 5%
Xem thêm: Dự án Xuân Phương Residence
Mong rằng những thông tin trên sẽ giúp bạn có thêm những góc nhìn hữu ích trong quá trình đầu tư và nghiên cứu thị trường bất động sản. Nếu bạn đang tìm kiếm một đơn vị tin cậy để đăng tin bất động sản hoặc tìm kiếm thông tin bất động sản một cách hiệu quả, dịch vụ của chúng tôi luôn sẵn sàng hỗ trợ. Chúng tôi luôn cố gắng mang lại cho bạn trải nghiệm thuận tiện, chuyên nghiệp và thông tin bất động sản nhanh chóng, chính xác nhất. Cảm ơn sự tin tưởng và ủng hộ của bạn. Chúc bạn đạt được nhiều thành công và cơ hội mới trong lĩnh vực này!
Bản đồ










