Thông tin dự án Yên Hòa Condominium
Chung cư Yên Hòa Condominium còn được gọi là chung cư 259 Yên Hòa, chung cư N02 Yên Hòa hay chung cư ngõ 259 Yên Hòa bởi vì dự án nằm ngay số 4 ngõ 259 Yên Hòa, cạnh trường Tiểu học Yên Hòa.
Tuy là ngõ 259 nhưng khác các ngõ khác, chung cư Yên Hòa Condominium tọa lạc trên đường vào khu lão thành cách mạng khu đô thị mới Yên Hòa. Mặt đường có chiều rộng 40m giao với đường Trần Kim Xuyến, đường Trung Kính. Đối diện với dự án này là tòa Chelsea Park.
Chủ đầu tư chung cư Yên Hòa Condominium là Công ty CP Thanh Bình Hà Nội. Chung cư 259 Yên Hòa bao gồm 2 tòa NO-02 và NO-01. Hiện nay, chủ đầu tư đã khởi công xây dựng tòa NO-02 với thiết kế 1 sàn xây dựng có 08 căn hộ và 02 thang máy, 02 thang bộ.

Chung cư Yên Hòa Condominium
Hạ tầng - Quy hoạch
Tiện ích nội khu
- Hai tầng thương mại sẽ được thiết kế những dịch vụ như giải khát, ăn uống, sapa, siêu thị, văn phòng, nhà trẻ, cửa hàng thời trang... nhằm mang tới cho cư dân cuộc sống tiện nghi và dễ dàng hòa nhập cùng cộng đồng.
- Khu vực đỗ xe bảo đảm được tiêu chuẩn 1 xe ô tô/01 hộ, chưa tính chỗ để xe máy.
- Hệ thống thang máy tốc độ cao, hiện đại của tòa nhà sẽ giúp cho người dân di chuyển thuận tiện và nhanh chóng.
- Hạ tầng kỹ thuật hoàn chỉnh, đồng bộ với hệ thống cấp thoát nước, thông tin liên lạc, phòng cháy chữa cháy đầy đủ... Với bố cục tổng mặt bằng được quy hoạch để bảo đảm khoảng cách phòng cháy và chữa cháy với những công trình lân cận.

Các tiện ích tại dự án
Tiện ích ngoại khu
Dự án chung cư Yên Hòa Condominium N02 Yên Hòa được thừa hưởng dịch vụ và tiện ích từ những dự án xung quanh như:
- Nhà trẻ phường Yên Hòa cách 350m
- Trường tiểu học Nam Trung Yên cách 1,18km
- Trường tiểu học Lý Thái Tổ là 1,19km
- Trường tiểu học Trung Hòa cách 470m
- Trường THCS Yên Hòa cách 700m
- Trường THCS Nam Trung Yên khoảng 1,07km
- Trường PTTH dân lập Nguyễn Siêu 760m
- Trường Quốc tế Global Yên Hòa cách 40m
- Trường chuyên Hà Nội Amsterdam là 1,3km
- Đại học kỹ thuật hậu cần CAND khoảng 550m
- Trường nội trú Nguyễn Viết Xuân cách 600m
- Trường Đại học Lao động Xã hội cách 890m
- Trường Đại học Ngoại thương Hà Nội cách 1km
- Bệnh viện Giao thông vận tải TW cách 1km
- Viện huyết học và truyền máu TW cách 1,14km
- Bệnh viện Phụ sản Hà Nội cách 1,3km
- Bệnh viện Nhi TW cách 1,3km
Bên cạnh đó, dự án gần trung tâm mua sắm, sân vận động, bến xe, công viên, siêu thị... như Grand Plaza, Big C, The Maner, công viên Yên Hòa, Cầu Giấy, bến xe Mỹ Đình...

Liên kết vùng tại dự án
Thiết kế - Mẫu nhà
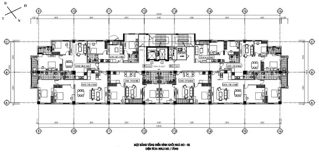
Mặt bằng chung cư
Dự án Yên Hòa Condominium bao gồm 1 tầng hầm, 2 tầng trung tâm thương mại, từ tầng 3 trở lên là các sàn căn hộ. Mỗi sàn có 8 căn hộ với rộng từ 45-103m2, thiết kế 2-3 phòng ngủ.

Mặt bằng thiết kế từ tầng 2-7:

Mặt bằng thiết kế từ tầng 8-12:

Thiết kế căn hộ
Chung cư Yên Hòa Condominium có 8 căn hộ/sàn cụ thể:
- Căn hộ CH1 rộng 56,5m2 gồm 2 phòng ngủ, 2 WC
- Căn hộ CH2 rộng 83,7m2 gồm 2 phòng ngủ, 2 WC
- Căn hộ CH3 rộng 103,6m2 gồm 3 phòng ngủ, 2 WC
- Căn hộ CH4 rộng 79m2 gồm 2 phòng ngủ, 2 WC
- Căn hộ CH5 rộng 79m2 gồm 2 phòng ngủ, 2 WC
- Căn hộ CH6 rộng 103,6m2 gồm 3 phòng ngủ, 2 WC
- Căn hộ CH7 rộng 75,2m2 gồm 2 phòng ngủ, 2 WC
- Căn hộ CH8 rộng 45,8m2 gồm 2 phòng ngủ, 1 WC









Mẫu căn hộ tại dự án
Vị trí
Chung cư Yên Hòa Condominium tọa lạc tại tổ 24 ngõ 259 Yên Hòa, quận Cầu Giấy, Hà Nội. Đây là vị trí trung tâm của những khu đô thị, dự án đã và đang hoàn thành như: Dịch Vọng, Trung Yên, Nam Trung Yên, Trung Hòa Nhân Chính... nơi có hệ thống hạ tầng kỹ thuật hoàn thiện hoàn thiện, đồng bộ. Tòa nhà chung cư có phía Đông bắc giáp Tiểu học Yên Hòa; phía Đông Nam giáp đầu đường Trần Kim Xuyến, khu đô thị mới Yên Hòa; phía Tây Nam giáp khu nhà liền kề tập thể chỉnh hình và phía Nam giáp dự án Chelsea Park.

Vị trí chung cư Yên Hòa Condominium
Tiến độ
Cập nhật tiến độ chung cư Yên Hòa Condominium quý III/2016 (ngày 25/8/2016): Đã hoàn thiện, đang bàn giao cho khách hàng


Hỗ trợ tài chính
- Giá gốc căn hộ Yên Hòa Condominium trên hợp đồng: 22 triệu/m2 đã bao gồm VAT, chưa có phí bảo trì
- Giá bán: từ 24-30 triệu/m2 tùy diện tích, căn, tầng,
- Giá hoàn thiện: Thêm 2 triệu/m2
Tiến độ thanh toán linh hoạt chia làm 6 đợt cụ thể:
- Đợt 1: Thanh toán 30% giá trị hợp đồng ngay khi ký kết hợp đồng mua bán
- Đợt 2: Thanh toán 20% giá trị hợp đồng khi xây xong kết cấu sàn tầng 8 (dự kiến chậm nhất vào ngày 25/7/2015)
- Đợt 3: Thanh toán 20% giá trị hợp đồng khi xây xong kết cấu sàn tầng 12 (dự kiến chậm nhất vào ngày 15/9/2015)
- Đợt 4: Thanh toán 10% giá trị hợp đồng khi hoàn thành trát xong mặt ngoài (dự kiến chậm nhất vào ngày 15/10/2015)
- Đợt 5: Thanh toán 10% khi tòa nhà hoàn thành trát, ốp, lát bên trong (dự kiến chậm nhất vào ngày 10/6/2016)
- Đợt 6: Thanh toán 10% khi có thông báo của chủ đầu tư về việc bàn giao căn hộ và 2% phí bảo trì khi ký bàn giao căn hộ cho chủ sở hữu
Các khách hàng mua căn hộ tại dự án Yên Hòa Condominium sẽ được hỗ trợ vay vốn lên tới 70% giá trị căn hộ thông qua chương trình liên kết với Ngân hàng Techcombank, MB bank, Vietcombank, Eximbank, Indovina bank,...
Xem thêm: Dự án Yên Dũng Green Park
Mong rằng những thông tin trên sẽ giúp bạn có thêm những góc nhìn hữu ích trong quá trình đầu tư và nghiên cứu thị trường bat dong san. Nếu bạn đang tìm kiếm một đơn vị tin cậy để đăng tin hoặc tìm kiếm thông tin bất động sản một cách hiệu quả, dịch vụ của chúng tôi luôn sẵn sàng hỗ trợ. Chúng tôi luôn cố gắng mang lại cho bạn trải nghiệm thuận tiện, chuyên nghiệp và thông tin bất động sản nhanh chóng, chính xác nhất. Cảm ơn sự tin tưởng và ủng hộ của bạn. Chúc bạn đạt được nhiều thành công và cơ hội mới trong lĩnh vực này!
Bản đồ









